27th - 29th April 2026 | InterContinental | Berlin
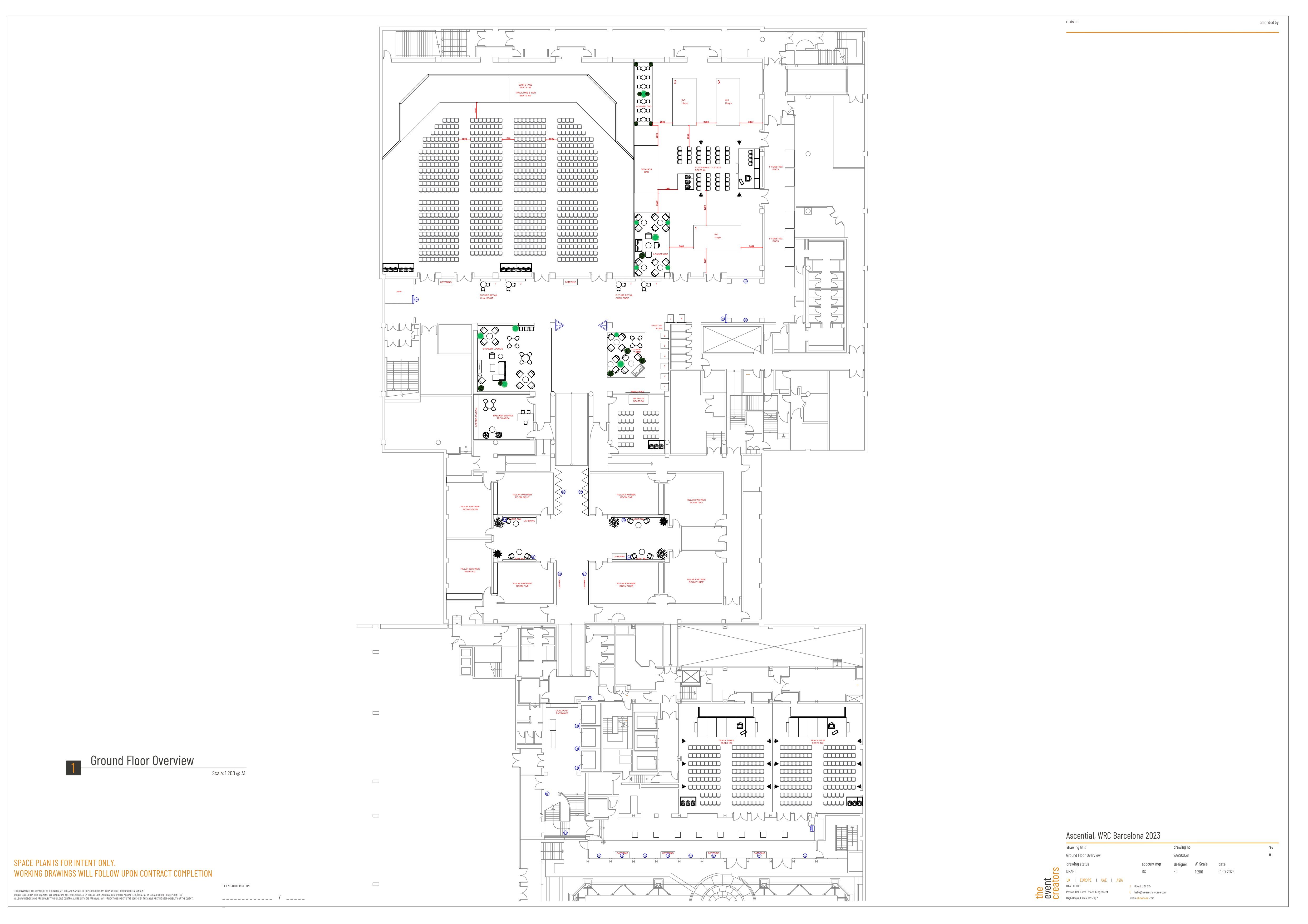
Please find below the floor plan for the event. To view a high resolution version, please click here.
Kindly note, the floor plan is subject to change.
Sign up for updates on World Retail Congress events, content, and more.